230

















1 / 17
Nyproduktion
San Fulgencio
233 900 €
Översikt
- Typ
- Lägenhet
- Referensnummer
- N8791
- Antal sovrum
- 2
- Antal badrum
- 2
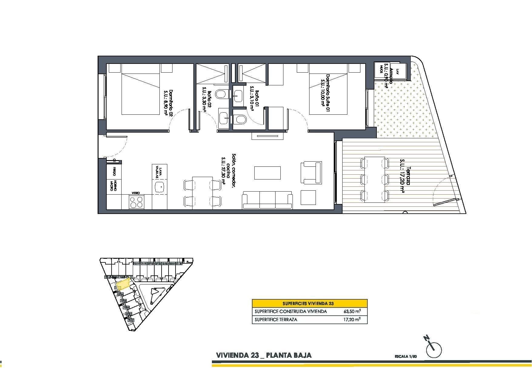
- Byggyta
- 63 kvm
- Boarea
- 58 kvm
- Hiss
- Nej
- Parkering
- Ja, en parkeringsplatrs ingår
- Terrass
- 17 kvm ( Terrass. Tomtarea kan variera. )
- Pool
- Ja ( Gemensam )
Nyproducerade bungalower nära havet – med plats för livsnjutning
Nytt, modernt och med närhet till havet – bungalower för ett bekvämt liv i solen
Välkommen till ett nytt bostadsområde i charmiga Pilar de la Horadada – en plats där den spanska småstadskänslan möter det medelhavsnära lugnet. Här bor du i ett nybyggt och stilrent hem med en solsäker tillvaro, ett stenkast från långgrunda stränder som Las Higuericas och Mil Palmeras.
Området består av 28 moderna bungalower med två eller tre sovrum. Välj mellan markplanslägenheter med privata trädgårdar eller övre plan med stora solterrasser och tillhörande förråd – båda med härligt ljusflöde och välplanerade ytor. Många av bostäderna har dessutom ett soligt söderläge och utsikt mot poolområdet eller en grönskande park.
Interiört möts du av ett generöst vardagsrum i öppen planlösning mot köket, bra förvaring i inbyggda garderober och fina ljusinsläpp. Alla bostäder har privat terrass och egen parkeringsplats. För din bekvämlighet ingår bland annat badrumsmöbler, aerotermiskt varmvatten och förinstallation för luftkonditionering.
I det gemensamma området finns en vacker pool inramad av grönområden – en naturlig samlingsplats för både avkoppling och umgänge. Från bostaden når du havet på bara några minuter med cykel eller en behaglig promenad längs strandpromenaden.
Läget är svårslaget med närhet till butiker, caféer, restauranger och golfbanor – och både Alicante och Murcias flygplatser nås smidigt med bil.
Det här är ett hem att trivas i – oavsett om du söker en permanent bostad i solen eller ett semesterboende med det lilla extra.
Kontakta oss gärna för mer information eller för att boka en visning!
Välkommen till ett nytt bostadsområde i charmiga Pilar de la Horadada – en plats där den spanska småstadskänslan möter det medelhavsnära lugnet. Här bor du i ett nybyggt och stilrent hem med en solsäker tillvaro, ett stenkast från långgrunda stränder som Las Higuericas och Mil Palmeras.
Området består av 28 moderna bungalower med två eller tre sovrum. Välj mellan markplanslägenheter med privata trädgårdar eller övre plan med stora solterrasser och tillhörande förråd – båda med härligt ljusflöde och välplanerade ytor. Många av bostäderna har dessutom ett soligt söderläge och utsikt mot poolområdet eller en grönskande park.
Interiört möts du av ett generöst vardagsrum i öppen planlösning mot köket, bra förvaring i inbyggda garderober och fina ljusinsläpp. Alla bostäder har privat terrass och egen parkeringsplats. För din bekvämlighet ingår bland annat badrumsmöbler, aerotermiskt varmvatten och förinstallation för luftkonditionering.
I det gemensamma området finns en vacker pool inramad av grönområden – en naturlig samlingsplats för både avkoppling och umgänge. Från bostaden når du havet på bara några minuter med cykel eller en behaglig promenad längs strandpromenaden.
Läget är svårslaget med närhet till butiker, caféer, restauranger och golfbanor – och både Alicante och Murcias flygplatser nås smidigt med bil.
Det här är ett hem att trivas i – oavsett om du söker en permanent bostad i solen eller ett semesterboende med det lilla extra.
Kontakta oss gärna för mer information eller för att boka en visning!
I närheten
- Avstånd till strand
- 7 km
- Avstånd till flygplats
- 34 km
- Avstånd till mataffär
- 4,8 km
- Avstånd till hav
- 7 km
- Avstånd till golfbana
- 5,9 km
- Avstånd till sjukhus
- 4,4 km
Bilder




Ansvarig mäklare
Extra kontaktperson
Karta
San Fulgencio
Andra har också tittat på
1 / 0

