230


































1 / 34
Exceptional LivingNyproduktion
Dona Pepa, Ciudad Quesada
1 050 000 €
Översikt
- Typ
- Villa
- Referensnummer
- N9261
- Antal sovrum
- 3
- Antal badrum
- 3
- Byggyta
- 284 kvm
- Boarea
- 154 kvm
- Tomt
- 557 kvm
- Hiss
- Nej
- Pool
- Ja
- Terrass
- 20 kvm
- Parkering
- Ja, två parkeringsplatser ingår
Modern elegans och soligt lugn – nybyggd villa med utsökt design
Välkommen till ett hem där modern arkitektur möter medelhavets ljus och livskvalitet. Denna nybyggda villa i Rojales erbjuder ett stilrent boende i harmoni med naturen – ett hem som andas rymd, komfort och elegans. Här bor du i ett lugnt område med gångavstånd till alla bekvämligheter och bara en kort biltur från de gyllene stränderna vid Costa Blanca.
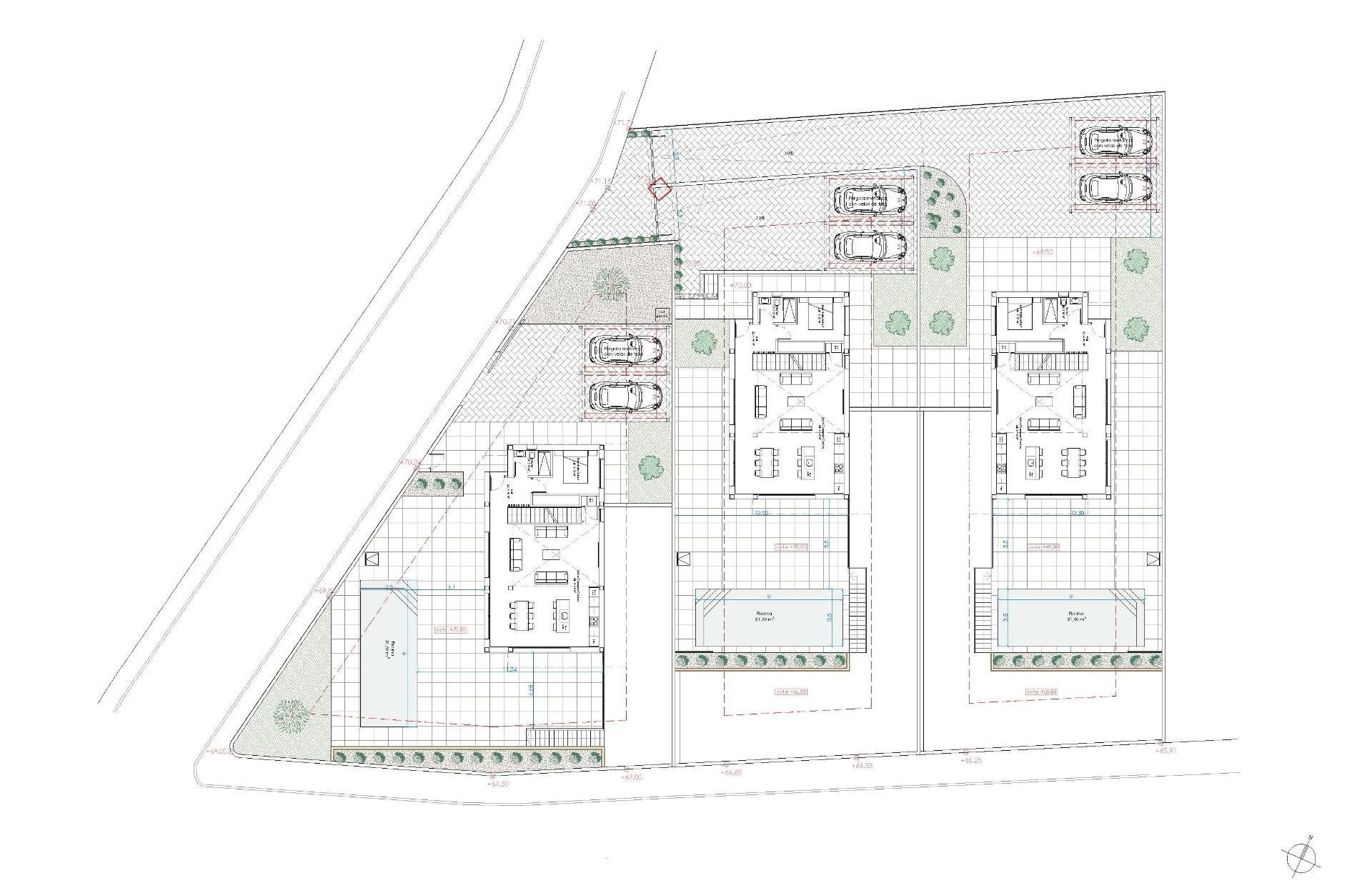
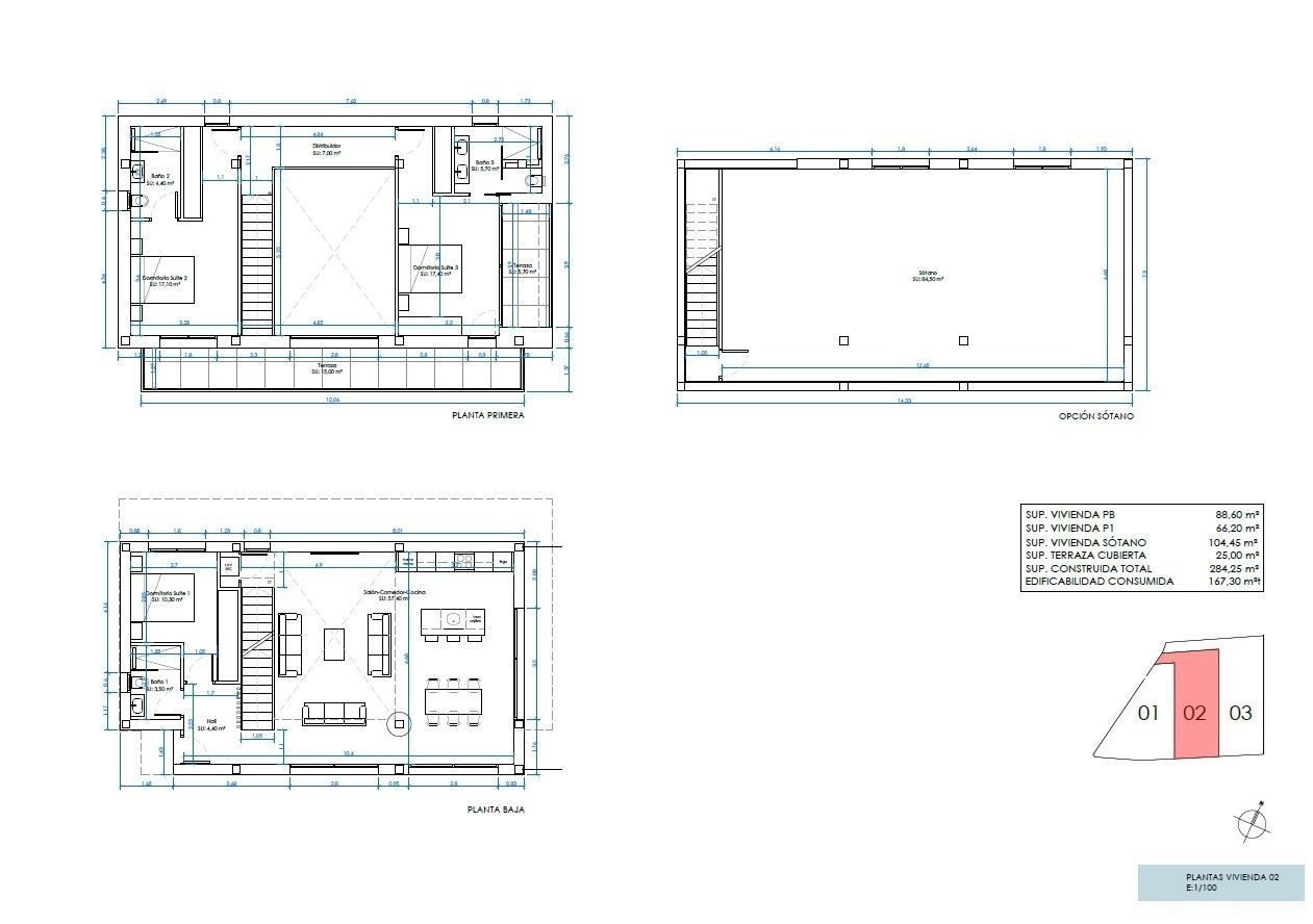
Villan är uppförd med fokus på öppenhet och ljus, där varje rum flyter naturligt in i nästa. På bottenvåningen möts du av ett vardagsrum med dubbel takhöjd som skapar en känsla av luftighet och rymd. Det moderna köket med köksö blir hemmets hjärta – en plats att samlas på, laga mat och njuta av umgänget. Här finns också ett sovrum och ett elegant badrum. På övervåningen väntar två generösa sovrum med egna badrum och privata terrasser där morgonkaffet kan avnjutas i solen.
Källaren är något alldeles extra – ljus, ventilerad och med många möjligheter. Den kan förvandlas till allt från hemmabio och gym till gästrum eller kontor. Utanför fortsätter hemmet i samma eleganta stil, med en privat pool på 9 x 3,5 meter, vackert anlagda trädgårdar och flera terrasser där du kan koppla av och njuta av klimatet året runt.
Kvaliteten känns i varje detalj. Badrummen är fullt möblerade och utrustade med speglar och moderna lösningar, golvvärme ger extra komfort och det aerotermiska systemet garanterar energieffektivitet. Villan har luftkonditionering, parkeringsplats för flera fordon och en genomgående känsla av exklusivitet och omtanke.
Läget är idealiskt – i den charmiga staden Rojales, känd för sin avslappnade atmosfär, sina grönområden och närheten till allt du behöver. Här finns butiker, restauranger och skolor inom räckhåll, och på bara tio minuter når du den välkända golfbanan La Marquesa. Stränderna i Guardamar del Segura ligger en kort bilresa bort, liksom de livliga kuststäderna Torrevieja och Alicante.
Detta är ett hem som inte bara erbjuder modern design och bekvämlighet, utan också en livsstil fylld av sol, harmoni och frihet.
Kontakta oss idag för att boka en privat visning och låt dig förföras av känslan av att komma hem till Medelhavet.ng, erbjuder denna nybyggda villa i Ciudad Quesada allt du behöver för en medelhavsstil. Kontakta oss idag för mer information och för att boka en privat visning.
Villan är uppförd med fokus på öppenhet och ljus, där varje rum flyter naturligt in i nästa. På bottenvåningen möts du av ett vardagsrum med dubbel takhöjd som skapar en känsla av luftighet och rymd. Det moderna köket med köksö blir hemmets hjärta – en plats att samlas på, laga mat och njuta av umgänget. Här finns också ett sovrum och ett elegant badrum. På övervåningen väntar två generösa sovrum med egna badrum och privata terrasser där morgonkaffet kan avnjutas i solen.
Källaren är något alldeles extra – ljus, ventilerad och med många möjligheter. Den kan förvandlas till allt från hemmabio och gym till gästrum eller kontor. Utanför fortsätter hemmet i samma eleganta stil, med en privat pool på 9 x 3,5 meter, vackert anlagda trädgårdar och flera terrasser där du kan koppla av och njuta av klimatet året runt.
Kvaliteten känns i varje detalj. Badrummen är fullt möblerade och utrustade med speglar och moderna lösningar, golvvärme ger extra komfort och det aerotermiska systemet garanterar energieffektivitet. Villan har luftkonditionering, parkeringsplats för flera fordon och en genomgående känsla av exklusivitet och omtanke.
Läget är idealiskt – i den charmiga staden Rojales, känd för sin avslappnade atmosfär, sina grönområden och närheten till allt du behöver. Här finns butiker, restauranger och skolor inom räckhåll, och på bara tio minuter når du den välkända golfbanan La Marquesa. Stränderna i Guardamar del Segura ligger en kort bilresa bort, liksom de livliga kuststäderna Torrevieja och Alicante.
Detta är ett hem som inte bara erbjuder modern design och bekvämlighet, utan också en livsstil fylld av sol, harmoni och frihet.
Kontakta oss idag för att boka en privat visning och låt dig förföras av känslan av att komma hem till Medelhavet.ng, erbjuder denna nybyggda villa i Ciudad Quesada allt du behöver för en medelhavsstil. Kontakta oss idag för mer information och för att boka en privat visning.
I närheten
- Avstånd till strand
- 7 km
- Avstånd till flygplats
- 52 km
- Avstånd till mataffär
- 1,5 km
- Avstånd till hav
- 7 km
- Avstånd till golfbana
- 3 km
- Avstånd till sjukhus
- 0,8 km
Bilder




Ansvarig mäklare
Extra kontaktperson
Karta
Dona Pepa
Andra har också tittat på
1 / 0

